Skip to content
  • (604) 230-5259
  • Connect
    • Email
    • Facebook
Stephen Gorrie
Skip to content
  • Home
  • About
    • Meet Stephen
    • Testimonials
  • Featured Listings
    • Featured Listings
    • Past Sales
  • Property Search
    • Lower Mainland
      • Port Coquitlam
      • Coquitlam
      • Port Moody
      • New Westminster
      • Burnaby
        • North Burnaby
        • South Burnaby
        • East Burnaby
      • Maple Ridge
      • Pitt Meadows
      • Surrey
      • Langley
      • Vancouver
        • East Vancouver
        • Vancouver West
        • Vancouver Downtown
        • Vancouver South
        • West Vancouver
  • Resources
    • Buyer’s Guide
    • Buying for the Best Price Possible
    • Seller’s Guide
    • Selling your Home for Top Dollar
    • Mortgage Calculator

Stephen Gorrie Real Estate

MASTER MEDALLION MEMBER 2009 - 2024 ••• 2009 GREATER VANCOUVER REAL ESTATE BOARD ROOKIE OF THE YEAR ••• REMAX HALL OF FAME

Stephen Gorrie

Stephen Gorrie Real Estate

MASTER MEDALLION MEMBER 2009 - 2024 ••• 2009 GREATER VANCOUVER REAL ESTATE BOARD ROOKIE OF THE YEAR ••• REMAX HALL OF FAME

Sold

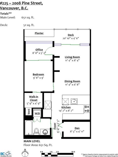
#225 - 2008 Pine Street

False Creek – Vancouver, BC

19
  • #225 - 2008 Pine Street
  • $649,900
  • 1 bedroom
  • 1 bathroom
  • 651 sqft
1 of 19
This listing is provided by RE/MAX Advantage Realty
  • Details

  • List Price $649,900
  • MLS® # R2326646
  • Style 1 Storey
  • Bedroom 1
  • Bathroom 1
  • Year Built 2009
  • Age 11
  • Floor Space 651 sqft
  • Condo Fees $350
  • Taxes $1,466
  • Tax Year 2018
  • Amenities Bike Room, Elevator, Exercise Centre, In Suite Laundry, Storage
  • Address #225 2008 Pine Street, Vancouver, BC, V6J 0B8

About

RARELY do you come across a PERFECTLY laid out floor plan with the BEST use of space you will ever see! More kitchen cupboard space than most 4,000 sq ft houses! Not only do you have a den, but also a second den so to speak that’s listed as an office that has no closet but windows and would probably be considered a bedroom by Vancouver standards these days! This GORGEOUS unit is an AWESOME concrete, 5 star building with tons of windows for light is one you don’t want to miss! Has a 51 sq ft deck and a storage locker size you just don’t find in newer construction in the city! Two dogs or cats and rentals allowed. The Mantra by Cressey is a BOUTIQUE development in a GREAT location with BEAUTIFUL finishings that the pictures will tell! Open House on Sunday, Dec 16th from 12 to 2!

#225 - 2008 Pine Street Virtual Tour

Contact

Stephen Gorrie
  • A featured listing of
    Stephen Gorrie
  • My Office RE/MAX All Points Group
  • Mobile (604) 230-5259
  • Email stephengorrie@remax.net

Community

Mortgage calculator

RE/MAX All Points Group — 321 Sixth St #102 New Westminster, BC V3L 3A7 — (604) 526-2888
© 2026 Stephen Gorrie
A GREAT location
This representation is based in whole or in part on data generated by the Chilliwack & District Real Estate Board, Fraser Valley Real Estate Board or Greater Vancouver REALTORS® which assumes no responsibility for its accuracy. Copyright 2026 by the Greater Vancouver REALTORS®, Fraser Valley Real Estate Board, Chilliwack and District Real Estate Board, and BC Northern Real Estate Board. All rights reserved. Listing data last updated 2026-03-17T12:12:36Z.
Powered by Avenue
The growth engine for driven real estate professionals.